作者:admin
|來源:
|日期:2019-12-04 09:25:22
編者按:根據現有可查證的檔案記錄,目前被國內冠之以”自平衡法“之名的樁內預埋加載設備進行樁基承載特性檢測的方法,最早于1960年代有以色列AfarVasela公司提出并實施。根據專利資料,該法被稱為“一種新的承載力測試方法”,俗稱為“通莫靜載法”。(-長文預警-)
一、基本原理
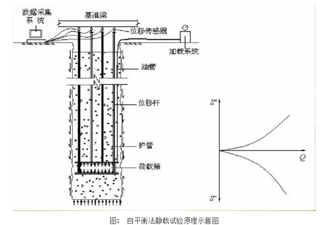
自平衡法工作原理是把一種特制的加載裝置——荷載箱和鋼筋籠焊接在一起埋入樁內,荷載箱埋置深度根據樁及土層預先估算得到,其位置即是理論計算的樁身縱向承載力的上下平衡點。埋設時將荷載箱的高壓油管、位移測量棒或位移絲引到地面,然后澆注成樁。試驗時,由高壓油泵在地面向荷載箱充油加載,荷載箱將力傳遞到樁身,其上部樁身的摩擦力與下部樁的摩擦力及端阻力相平衡——自平衡來維持加載。根據測得的荷載和上下位移量,分別繪制試驗平衡點向上向下Q-s曲線、s-lgt曲線、s-lgQ曲線以及等效轉換曲線(關于等效轉換曲線,有部分國內地方標準未做規定),通過分析不僅可以獲得樁基承載力,而且可以獲得每層土層的側阻系數、樁的側阻、樁端承力等一系列數據。見示意圖所示。

自平衡測試法尤其適用于粘性土、粉土、砂土、巖層中的人工挖孔樁、鉆孔灌注樁等,特別是傳統靜載試樁相當難以實現的水上試樁、坡地試樁、基坑底試樁、狹窄場地試樁、超高承載力試樁等情況。
二、檢測方法
2.1 自平衡測試加載采用專用的荷載箱,使用前必須經法定計量單位或授權的標定計量,荷載箱平放于試樁中心,荷載箱位移方向與樁身軸線夾角不大于5°,荷載箱極限加載能力應大于預估極限承載力的1.5倍。
2.2 荷載測量采用聯于荷載箱的壓力表;或壓力傳感器測定油壓,根據荷載箱率定曲線換算荷載。
2.3 試樁位移測量宜采用位移傳感器或大量程百分表。
2.4 試樁和基準樁之間的中心距離應大于等于3D且不小于2.0m。
2.5 荷載箱的位移傳遞裝置的護管與鋼筋籠焊接成整體,保證其垂直度和剛度,護管還應分別與荷載箱上下蓋焊接,焊縫應滿足強度要求,并確保護管不滲漏出泥漿。荷載箱放置處一般宜有加強措施。
2.6 荷載箱放置在樁身平衡點處,使上、下段樁的承載力相等以維持加載。當端阻力大于側阻力時,可根據樁長徑比、地質情況采取技術措施。
2.7 試驗檢測應符合下列規定:
采用慢速維持荷載法,即逐級加載,每級荷載達到相對穩定后方可加下一級荷載,直到試樁破壞,然后分級卸到零。對工程樁作驗證性試驗,當有成熟的地區經驗時,可采用快速維持荷載法,即每隔一小時加一級荷載,是否延長維持荷載時間應根據樁位移量收斂情況確定。
加載應分級進行,采用逐級等量加載;分級荷載宜為最大加載量或預估極限承載力的1/10,其中第一級可取分級荷載的2倍。
當出現規范規定的終止加載條件之一時,可終止加載。

三、檢測數據的分析與判定
3.1 極限承載力
極限承載力的確定是試驗的首要目的,根據試樁的加載值,可按下式確定試樁的極限承載力:

式中:Quu ——試樁上段樁的極限承載力; Qud ——試樁下段樁的極限承載力;G ——試樁荷載箱上部樁自重;γ ——上端樁的承載力折算系數,根據荷載箱上部土的類型確定:粘性土、粉土γ=0.8;砂土γ=0.7;巖石γ=1;若上部有不同類型的土層,γ取加權平均值。

3.2 關于等效轉換
為了更準確的分析單樁的極限承載力,可以將自平衡法試驗結果等效轉換為傳統靜載試驗Q-S曲線,利用傳統靜載的單樁極限承載力確定方法進行輔析。同時,也可以很好的驗證自平衡法的有效性。自平衡法測試結果向傳統靜載試驗的樁頂荷載—位移曲線轉換方法根據向上向下位移同步的原則擬合,即通過位移進行疊加荷載的方法進行轉換。
目前,國外對單樁自平衡靜載試驗測試值如何轉換計算得出類似傳統靜載試驗抗壓承載力的方法不盡相同,在山東省地方標準DB37/T5044-2015中亦未做規定。
四、結語
自平衡法樁基檢測技術和傳統的靜載試驗相比具有試驗裝置簡單、試驗費用較省且成本可控(特別是與配重堆載反力法相比)、不占用施工場地、不影響施工進度、工地安全易保障、檢測單樁承載力大等優點,特別是在水上試樁、坡地試樁、基坑底試樁、狹窄場地試樁、超高承載力試樁的應用中,具有明顯的工程優勢。但是,根據當前的工程經驗和技術分析,以下幾種情況下不建議采用自平衡法試驗:
1)建筑基樁設計等級為甲級、且無場地試樁數據的基樁;
2)為設計提供依據的試樁;
3)地質條件復雜、成樁質量可靠性低的基樁;
4)因自平衡裝置埋設造成基樁施工技術措施復雜的情況;
5)規范規定的其他不適宜的情況。
業務咨詢:0531-5871 8599 ???? 136-0531-3801
公司地址:濟南市 槐蔭區 美里路777號 海那城總部
郵政編碼:250118
檢驗地址:濟南市 高新區 東區科興路892號
郵政編碼:250104
備案信息:魯ICP備16041859號-4
山東魯勘集團有限公司 版權所有 All Rights Reserved.魯ICP備16041859號-4
Copyright (C) 2017 LuKan Seed. All Rights Reserved